Number 9 – a stylish 4 bedroom home
An appealing light and spacious open plan home with entrance hall and cloakroom. The contemporary kitchen with a breakfast bar and a stunning feature full height window. A large, bright living/dining room with bi-fold doors leading to the attractive laid to lawn garden with wide patio and pathway. Bedroom one has a floor to ceiling feature window and a pair of fitted double wardrobes, and a spacious shower en-suite. Both Bedrooms two and three are doubles with a family bathroom. An oak barn provides covered parking.
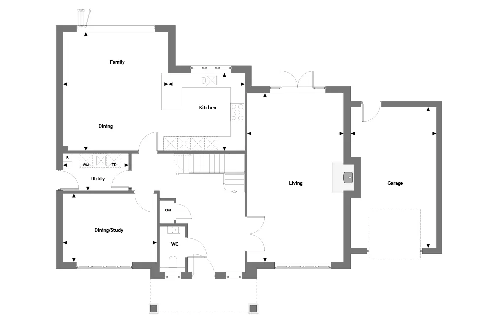
Living
7.45m x 4.28m / 24'5" x 14'0"
Dining/Study
3.00m x 4.15m / 10'0" x 13'7"
Family/Dining
5.47m x 4.62m / 18'0" x 15'2"
Kitchen
3.42m x 3.37m / 11'3" x 11'0"
Utility
1.65m x 2.90m / 5'5" x 9'6"
Master Bedroom
4.87m x 4.07m / 16'0" x 13'4"
Bedroom 2
4.06m x 4.64m / 13'4" x 15'3"
Bedroom 3
4.00m x 3.40m / 13'1" x 11'2"
Bedroom 4
3.18m x 3.73m / 10'5" x 12'3"
Garage
6.30m x 3.80m / 20'8" x 12'6"
Specifications
Open all
Close all
- Handcrafted shaker in-frame kitchen incorporating composite stone worktops with matching splashback and upstand
- Siemens stainless steel appliances throughout including:
- Multifunctional fan assisted single oven
- Integrated combination microwave
- Induction hob
- Integrated tall fridge
- Integrated tall freezer
- Fully-integrated multi-function dishwasher
- Integrated wine cooler
- Stainless steel under mounted one and a half bowl sink with chrome mixer tap
- LED under wall unit lighting
- Polished chrome power sockets above work surfaces
- Utility furniture incorporating wall units and composite stone worktop
- Siemens free-standing washing machine and free-standing tumble dryer
- Stainless steel under mounted single bowl sink and chrome tap
- Contemporary styled bathrooms incorporating Geberit suites and bathroom furniture with complementary Hansgrohe taps
- Freestanding bath with floor-standing tap to en-suite
- Vanity unit to all bathrooms
- Walk-in shower with fixed head and handheld shower to en-suites
- Double ended bath with central filler and retractable handheld shower to bathroom
- Mirror cabinet to all bathrooms
- Wall mounted WC with chrome dual flush plate, concealed cistern and soft close seat
- Chrome heated towel rail to all bathrooms
- Wall and floor tiles by Porcelanosa
- LPG gas-fired central heating with programmable heating controls.
- Underfloor heating throughout
- Stone fireplace with inset wood burner stove to living room
- LED downlights to kitchen/family/dining, utility, hall, landing, cloakroom, and all bathrooms
- Chrome light switches throughout
- Movement sensitive low level lighting to all bathrooms
- Power and light to loft space with ladder access
- Master light switch
- Digital TV points to all rooms
- Wired for satellite and Sky Q to living room with free view satellite points to all rooms
- Satellite dish provided
- Digital TV aerial and distribution system provided
- Telephone points to kitchen/family, study, and master bedroom
- Data pre-wired home network points to living room, study, kitchen/family, and all bedrooms
- USB charger point incorporated within power socket to all rooms
- Full width glazed aluminium bi-fold doors
- PVCu windows and casement doors with multipoint locking system with chrome handle
- Painted solid two panel internal doors with chrome finish door furniture
- Painted staircases with oak handrail with carpet runner and stair rods
- Fully fitted dressing area to main bedroom
- Full height wardrobe to bedroom 3
- Satin paint finish to all internal joinery to complement internal doors.
- Ceiling cornice throughout ground floor and landing
- Porcelain floor tiles to kitchen/family/dining area and all bathrooms
- Composite wood flooring to hall, cloakroom and dining/study.
- Carpet to all other rooms
- Block paved driveway
- Garage with electric up and over door
- Landscaped front garden and turf to rear gardens
- Natural sandstone paving to paths and patio area
- External tap
- External power point
- High security front entrance door with multi point locking system
- External light to all external doors with PIR control to house frontage
- Fully fitted hardwired alarm system
- Mains fed smoke detector with battery back up, fitted to hall and landing
- Carbon monoxide detector to utility and living room
- 10 Year Build Warranty Scheme
Open all
Close all
- Handcrafted shaker in-frame kitchen incorporating composite stone worktops with matching splashback and upstand
- Siemens stainless steel appliances throughout including:
- Multifunctional fan assisted single oven
- Integrated combination microwave
- Induction hob
- Integrated tall fridge
- Integrated tall freezer
- Fully-integrated multi-function dishwasher
- Integrated wine cooler
- Stainless steel under mounted one and a half bowl sink with chrome mixer tap
- LED under wall unit lighting
- Polished chrome power sockets above work surfaces
- Utility furniture incorporating wall units and composite stone worktop
- Siemens free-standing washing machine and free-standing tumble dryer
- Stainless steel under mounted single bowl sink and chrome tap
- Contemporary styled bathrooms incorporating Geberit suites and bathroom furniture with complementary Hansgrohe taps
- Freestanding bath with floor-standing tap to en-suite
- Vanity unit to all bathrooms
- Walk-in shower with fixed head and handheld shower to en-suites
- Double ended bath with central filler and retractable handheld shower to bathroom
- Mirror cabinet to all bathrooms
- Wall mounted WC with chrome dual flush plate, concealed cistern and soft close seat
- Chrome heated towel rail to all bathrooms
- Wall and floor tiles by Porcelanosa
- LPG gas-fired central heating with programmable heating controls.
- Underfloor heating throughout
- Stone fireplace with inset wood burner stove to living room
- LED downlights to kitchen/family/dining, utility, hall, landing, cloakroom, and all bathrooms
- Chrome light switches throughout
- Movement sensitive low level lighting to all bathrooms
- Power and light to loft space with ladder access
- Master light switch
- Digital TV points to all rooms
- Wired for satellite and Sky Q to living room with free view satellite points to all rooms
- Satellite dish provided
- Digital TV aerial and distribution system provided
- Telephone points to kitchen/family, study, and master bedroom
- Data pre-wired home network points to living room, study, kitchen/family, and all bedrooms
- USB charger point incorporated within power socket to all rooms
- Full width glazed aluminium bi-fold doors
- PVCu windows and casement doors with multipoint locking system with chrome handle
- Painted solid two panel internal doors with chrome finish door furniture
- Painted staircases with oak handrail with carpet runner and stair rods
- Fully fitted dressing area to main bedroom
- Full height wardrobe to bedroom 3
- Satin paint finish to all internal joinery to complement internal doors.
- Ceiling cornice throughout ground floor and landing
- Porcelain floor tiles to kitchen/family/dining area and all bathrooms
- Composite wood flooring to hall, cloakroom and dining/study.
- Carpet to all other rooms
- Block paved driveway
- Garage with electric up and over door
- Landscaped front garden and turf to rear gardens
- Natural sandstone paving to paths and patio area
- External tap
- External power point
- High security front entrance door with multi point locking system
- External light to all external doors with PIR control to house frontage
- Fully fitted hardwired alarm system
- Mains fed smoke detector with battery back up, fitted to hall and landing
- Carbon monoxide detector to utility and living room
- 10 Year Build Warranty Scheme