Number 4 – a stylish 3 bedroom home
Welcoming entrance hall with cloakroom. A spacious kitchen with island offers the perfect family and dining entertaining space, with a stunning feature full height bay window, and bi-fold doors leading to the patio. A separate utility room with side door. A large living room with feature wood burner fireplace, French doors open to the large patio and private wrap around garden. Bedroom one has a luxury en-suite bathroom and a fitted triple wardrobe. Bedroom two has a fitted double wardrobe and a floor to ceiling bay window. An oak barn provides a generous covered parking space with an additional space.
Kitchen/Breakfast
3.17m x 3.92m / 10'4" x 12'9"
Utility
2.67m x 2.00m / 8'8" x 6'6"
Dining
3.81m x 2.77m / 12'5" x 9'1"
Living
5.86m x 3.94m / 19'2" x 12'9"
Family
3.44m x 3.31m / 11'3" x 10'9"
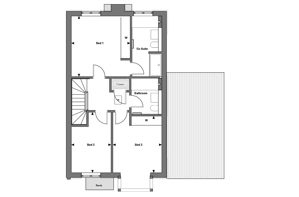
Master Bedroom
3.82m x 3.98m / 12'5" x 13'1"
Bedroom 2
2.61m x 3.93m / 8'6" x 12'9"
Bedroom 3
3.16m x 3.61m / 10'4" x 11'8"
Specifications
Open all
Close all
- Handcrafted shaker timber kitchen incorporating composite stone worktops with matching splashback and upstand
- Siemens stainless steel appliances throughout including:
- Multifunctional fan assisted single oven
- Integrated combination microwave
- Five ring gas hob with extractor fan
- Fully Integrated fridge (60%) / freezer (40%)
- Integrated multi-function dishwasher
- Stainless steel under mounted one and a half bowl sink with chrome mixer tap
- LED under wall unit lighting
- Polished chrome power sockets above work surfaces
- Utility furniture incorporating composite stone worktop
- Freestanding washing machine
- Freestanding tumble dryer
- Stainless steel under mounted single bowl sink and chrome tap
- Contemporary styled bathrooms incorporating Geberit suites and bathroom furniture with complementary Hansgrohe chrome taps
- Vanity unit to all bathrooms
- Mirror cabinet to en-suite
- Walk-in shower with fixed head and handheld shower to en-suite
- Double ended bath with central filler and retractable handheld shower
- Shower over bath to family bathroom
- Wall mounted WC with chrome dual flush plate, concealed cistern and soft close seat
- Chrome dual fuel heated towel rail to all bathrooms
- Electric underfloor comfort heating
- Wall and floor tiles by Porcelanosa
- LPG gas-fired central heating with energy efficient combination boiler with programmable thermostatic heating controls.
- Underfloor heating to ground floor with radiators to first floor
- Fireplace with inset wood burner stove and stone hearth to living room
- LED downlights to kitchen/family/dining, utility, hall, landing, cloakroom and all bathrooms
- Chrome light switches throughout
- Movement sensitive low level lighting to all bathrooms
- Power and light to loft space with ladder access
- Master light switch
- FFTP – Full Fibre installed to home
- Digital TV points to all rooms
- Wired for satellite and Sky Q to living room with free view satellite points to all rooms
- Satellite Dish provided
- Digital TV aerial and distribution system provided
- Telephone point to kitchen/family
- USB charger point incorporated within power socket to all rooms
- Full width glazed aluminium bi-fold doors
- PVCu windows and casement doors with multipoint locking system with chrome handle
- Farmhouse style Oak veneer panel pre-finished internal doors with chrome finish door furniture
- Painted staircases with oak polished handrail and bottom tread
- Fully fitted wardrobes to bedroom 1
- Full height wardrobe with sliding doors to bedroom 2
- Satin paint finish to all internal joinery.
- Ceiling cornice to hall, cloakroom and living room
- Porcelain floor tiles to hall, cloakroom, kitchen/family/dining area, utility and all bathrooms
- Carpet to all other rooms
- Oak Car Barn covered block paved parking space with a further parking space
- Electric car charging point
- Landscaped front garden and turf to rear gardens
- Natural sandstone paving to paths and patio area
- Timber garden shed
- External tap
- External power point
- High security front entrance door with multi point locking system
- External light to all external doors with PIR control to house frontage
- Fully fitted hardwired alarm system
- Mains fed smoke detector with battery back up, fitted to hall and landing
- 10 Year Build Warranty Scheme
Open all
Close all
- Handcrafted shaker timber kitchen incorporating composite stone worktops with matching splashback and upstand
- Siemens stainless steel appliances throughout including:
- Multifunctional fan assisted single oven
- Integrated combination microwave
- Five ring gas hob with extractor fan
- Fully Integrated fridge (60%) / freezer (40%)
- Integrated multi-function dishwasher
- Stainless steel under mounted one and a half bowl sink with chrome mixer tap
- LED under wall unit lighting
- Polished chrome power sockets above work surfaces
- Utility furniture incorporating composite stone worktop
- Freestanding washing machine
- Freestanding tumble dryer
- Stainless steel under mounted single bowl sink and chrome tap
- Contemporary styled bathrooms incorporating Geberit suites and bathroom furniture with complementary Hansgrohe chrome taps
- Vanity unit to all bathrooms
- Mirror cabinet to en-suite
- Walk-in shower with fixed head and handheld shower to en-suite
- Double ended bath with central filler and retractable handheld shower
- Shower over bath to family bathroom
- Wall mounted WC with chrome dual flush plate, concealed cistern and soft close seat
- Chrome dual fuel heated towel rail to all bathrooms
- Electric underfloor comfort heating
- Wall and floor tiles by Porcelanosa
- LPG gas-fired central heating with energy efficient combination boiler with programmable thermostatic heating controls.
- Underfloor heating to ground floor with radiators to first floor
- Fireplace with inset wood burner stove and stone hearth to living room
- LED downlights to kitchen/family/dining, utility, hall, landing, cloakroom and all bathrooms
- Chrome light switches throughout
- Movement sensitive low level lighting to all bathrooms
- Power and light to loft space with ladder access
- Master light switch
- FFTP – Full Fibre installed to home
- Digital TV points to all rooms
- Wired for satellite and Sky Q to living room with free view satellite points to all rooms
- Satellite Dish provided
- Digital TV aerial and distribution system provided
- Telephone point to kitchen/family
- USB charger point incorporated within power socket to all rooms
- Full width glazed aluminium bi-fold doors
- PVCu windows and casement doors with multipoint locking system with chrome handle
- Farmhouse style Oak veneer panel pre-finished internal doors with chrome finish door furniture
- Painted staircases with oak polished handrail and bottom tread
- Fully fitted wardrobes to bedroom 1
- Full height wardrobe with sliding doors to bedroom 2
- Satin paint finish to all internal joinery.
- Ceiling cornice to hall, cloakroom and living room
- Porcelain floor tiles to hall, cloakroom, kitchen/family/dining area, utility and all bathrooms
- Carpet to all other rooms
- Oak Car Barn covered block paved parking space with a further parking space
- Electric car charging point
- Landscaped front garden and turf to rear gardens
- Natural sandstone paving to paths and patio area
- Timber garden shed
- External tap
- External power point
- High security front entrance door with multi point locking system
- External light to all external doors with PIR control to house frontage
- Fully fitted hardwired alarm system
- Mains fed smoke detector with battery back up, fitted to hall and landing
- 10 Year Build Warranty Scheme