Skip to main content
Swallows Gate plot 5

Swallows Gate – Number 5

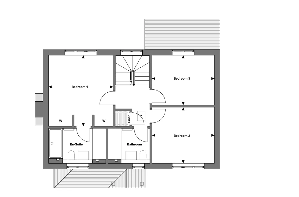
Number 5 – a stylish 3 bedroom home

Swallows Gate Plot 5
Swallows Gate Plot 5
Swallows Gate site plan

Specifications

Open all Close all

Plots

Swallows Gate - Plot 1
SOLD
Swallows Gate - Plot 2
SOLD
Swallows Gate - Plot 3
SOLD
Swallows Gate - Plot 4
SOLD
Swallows Gate - Plot 5
SOLD
Swallows Gate - Plot 6
SOLD
Swallows Gate - Plot 7
SOLD
Swallows Gate - Plot 8
SOLD
Swallows Gate - Plot 9
SOLD